• Alquiler Local Comercial 2 Depósitos Zona De Arenal Grande

Local

Goes, Montevideo

Alquiler $ 120.000

  • 1

    Baños

  • Sup.

    250 m2

En Alquiler

ID de la propiedad : 12114

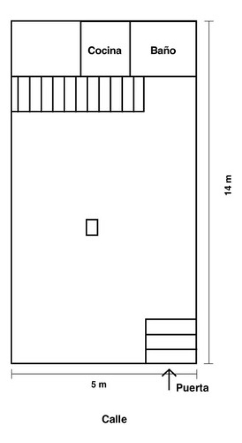
Se alquila local en plena zona de Goes, en Calle Domingo Aramburú:

- LOCAL COMERCIAL.
- En la mejor zona de Arenal Grande.
- Libre desde el primero de Abril 2026.
- Gran salón de venta.
- Dos amplios depósitos en los pisos de arriba.
- Sin gastos comunes.
- Garantías: SE EVALÚAN TODAS

Precio: $ 120.000
Gastos comunes: NO TIENE

Coordina tu visita por llamada o al WhatsApp: (092)133656

Características

  • Barrio  Goes
  • Vista  A La Calle
  • Frente al Mar  No
  • Distancia al Mar  0
  • Supeficie m2  250
  • Frente mts  0
  • Fondo mts  0
  • EntrePiso m2  0
  • Sub-Suelo m2  0

Precios de Alquiler

Video

 Alquiler Local Comercial 2 Depósitos Zona De Arenal Grande

Ubicación

Calle Domingo Aramburú Y Arenal Grande, Goes, Montevideo

Solicita mas información