• Alquiler de local comercial en Goes

Local

Goes, Montevideo

Alquiler $ 130.000

  • 1

    Baños

  • Sup.

    0 m2

En Alquiler

ID de la propiedad : 11988

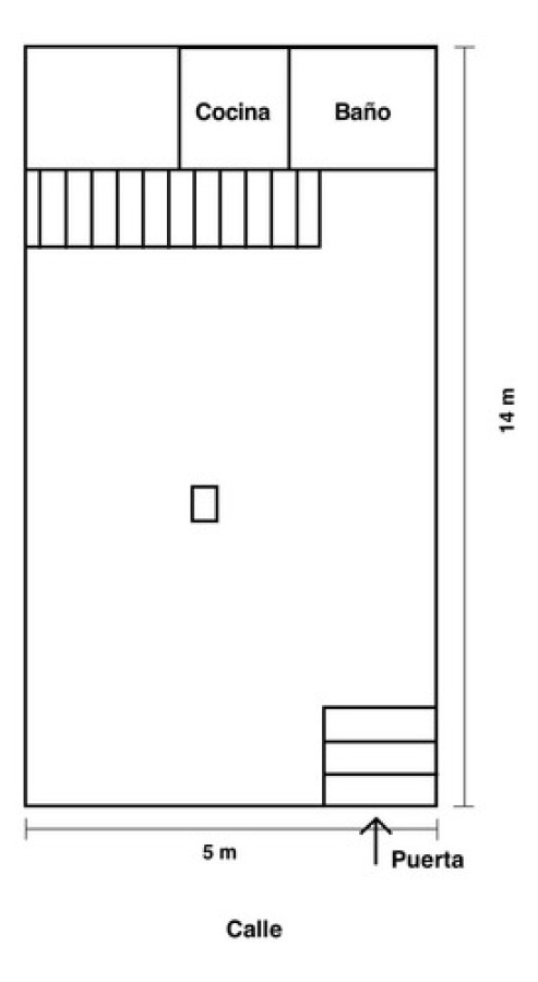
Local en una de las zonas más dinámicas de Montevideo. Ubicado en Goes, este espacio ofrece una excelente visibilidad y acceso, ideal para emprendedores que buscan establecer o expandir su negocio en un entorno en crecimiento.

Con un diseño versátil, este local se adapta a diversas actividades comerciales, desde tiendas hasta oficinas. Su ubicación estratégica garantiza un flujo constante de clientes, gracias a la cercanía con importantes vías de acceso y una variada oferta de servicios en la zona.

No deje pasar la oportunidad de invertir en un espacio que puede ser el inicio de su próximo gran proyecto.

¡Estamos aquí para ayudarle a dar el siguiente paso hacia el éxito!
Contacta con nuestros asesores hoy mismo al teléfono (092) 634 965 para obtener más información y programar una visita.

Características

  • Barrio  Goes
  • Distancia al Mar  0
  • Supeficie m2  0
  • Frente mts  0
  • Fondo mts  0
  • EntrePiso m2  0
  • Sub-Suelo m2  0

Precios de Alquiler

Video

 Alquiler de local comercial en Goes

Ubicación

Dr. Domingo Aramburu y Arenal Grande, Montevideo, Goes, Montevideo

Solicita mas información