• VENTA CASA EN PARQUE RODO MUY AMPLIA A RECICLAR

Casa

Parque Rodo, Montevideo

Venta USD 298.000

  • 8

    Dorms

  • 5

    Baños

  • Sup.

    400 m2

En VentaEn Alquiler

ID de la propiedad : 11708

Espacio y Comodidad en el Corazón de Parque Rodó

Descubra esta excepcional casa en Parque Rodó
Con generosos terreno de 500 m²
Esta propiedad es ideal para familias o empresas que buscan amplitud y confort.

Características Principales:

- 8 Dormitorios: Espaciosos y luminosos, perfectos para adaptarse a sus necesidades.
- 5 Baños: Comodidad para todos los miembros del hogar.
- Áreas de estar amplias que invitan a disfrutar de momentos en familia y con amigos.
- Muy próximo a Bv. Gral. Artigas.
- Fotos referencia, se encuentra para reciclar
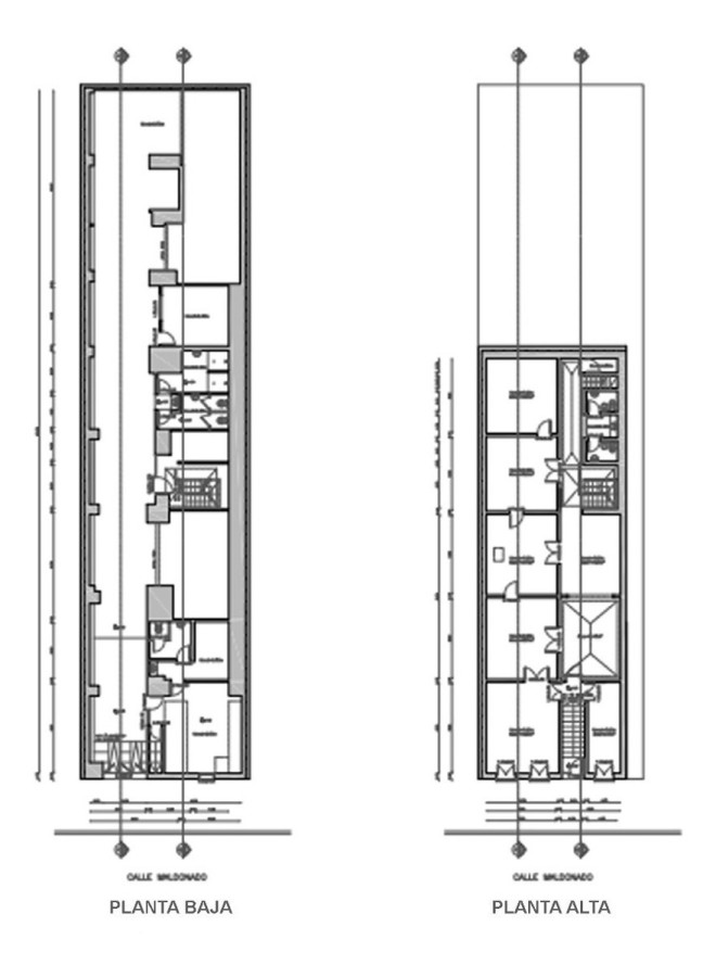
- Casa de dos plantas.
- Entrepiso y azotea.
- 250 metros cuadrados en planta baja, 150 metros cuadrados en planta alta y 150 metros cuadrados en azotea.
- Ideal para reciclar como negocio o viviendas.

Precio: U$S 298.000

Ubicada en una zona privilegiada, esta casa combina la cercanía a parques, servicios y la vibrante vida cultural de Montevideo.

¡Contacta con nuestros asesores hoy mismo al teléfono (091) 375 198 para obtener más información y programar una visita!

Características

  • Barrio  Parque Rodo
  • Vista  A La Calle
  • Orientacion  Sur
  • Frente al Mar  No
  • Distancia al Mar  0
  • Terreno m2  400
  • Edificado m2  400
  • Dormitorios  8
  • Baños  5
  • Suites  0
  • Toilette  Si
  • Cocina  Definida
  • Living  Si
  • Comedor  Si
  • Living Comedor  Si
  • Comedor Diario  Si
  • Capacidad Personas  0
  • Cantidad Camas  0
  • Dep. Servicio  Si
  • Baño Servicio  Si
  • Lavadero  No
  • PlayRoom  No
  • Estufa Leña  No
  • Cochera  6 Autos
  • Garage  Si
  • Estacionamiento  No
  • Cantidad de Plantas  2
  • Propiedad Horizonal  No
  • Piscina  No
  • Parrillero  No
  • Tipo de Techo  Planchada

Precios de Alquiler

Video

 VENTA CASA EN PARQUE RODO MUY AMPLIA A RECICLAR

Ubicación

Maldonado y Acevedo Diaz, Parque Rodo, Montevideo

Solicita mas información