• Se vende casa amplia con Garaje y 8 Dormitorios en Cordón

Casa

Parque Rodo, Montevideo

Venta USD 298.000

  • 8

    Dorms

  • 5

    Baños

  • Sup.

    400 m2

En VentaEn Alquiler

ID de la propiedad : 11366

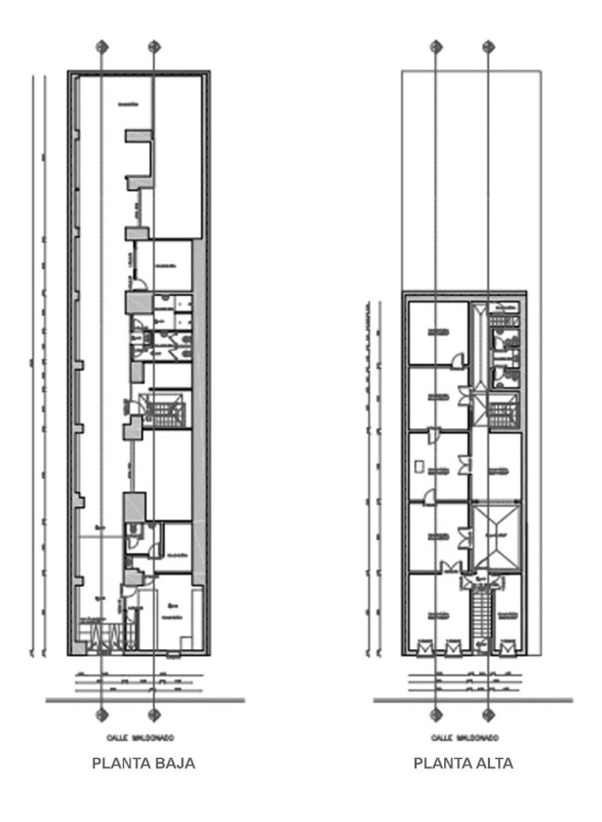
Se vende confortable casa en plena zona de Parque Rodó, en Maldonado:

- Muy próximo a Bv. Gral. Artigas.
- Fotos referencia.
- La están refaccionando.
- Casa de dos plantas.
- Entrepiso y azotea.
- 250 metros cuadrados en planta baja, 150 metros cuadrados en planta alta y 150 metros cuadrados en azotea.
- Ideal para reciclar como negocio o viviendas.

Precio: U$S 298.000

Esta casa no solo le brinda espacio, sino también la cercanía a parques, restaurantes y una variada oferta cultural.

No pierda la oportunidad de hacer de este lugar su nuevo hogar. Consulte con nuestros asesores para más información y agende su visita. (092)626084

Características

  • Barrio  Parque Rodo
  • Vista  Al Frente
  • Orientacion  Sur
  • Frente al Mar  No
  • Distancia al Mar  0
  • Terreno m2  400
  • Edificado m2  400
  • Dormitorios  8
  • Baños  5
  • Suites  0
  • Toilette  Si
  • Cocina  Definida
  • Living  Si
  • Comedor  Si
  • Living Comedor  Si
  • Comedor Diario  Si
  • Capacidad Personas  0
  • Cantidad Camas  0
  • Dep. Servicio  Si
  • Baño Servicio  Si
  • Lavadero  No
  • PlayRoom  No
  • Estufa Leña  No
  • Cochera  6 Autos
  • Garage  No
  • Estacionamiento  No
  • Cantidad de Plantas  2
  • Propiedad Horizonal  No
  • Piscina  No
  • Parrillero  Si
  • Tipo de Techo  Planchada

Precios de Alquiler

Video

 Se vende casa amplia con Garaje y 8 Dormitorios en Cordón

Ubicación

Maldonado 2273, Parque Rodó, Montevideo , Parque Rodo, Montevideo

Solicita mas información